Techninė informacija:
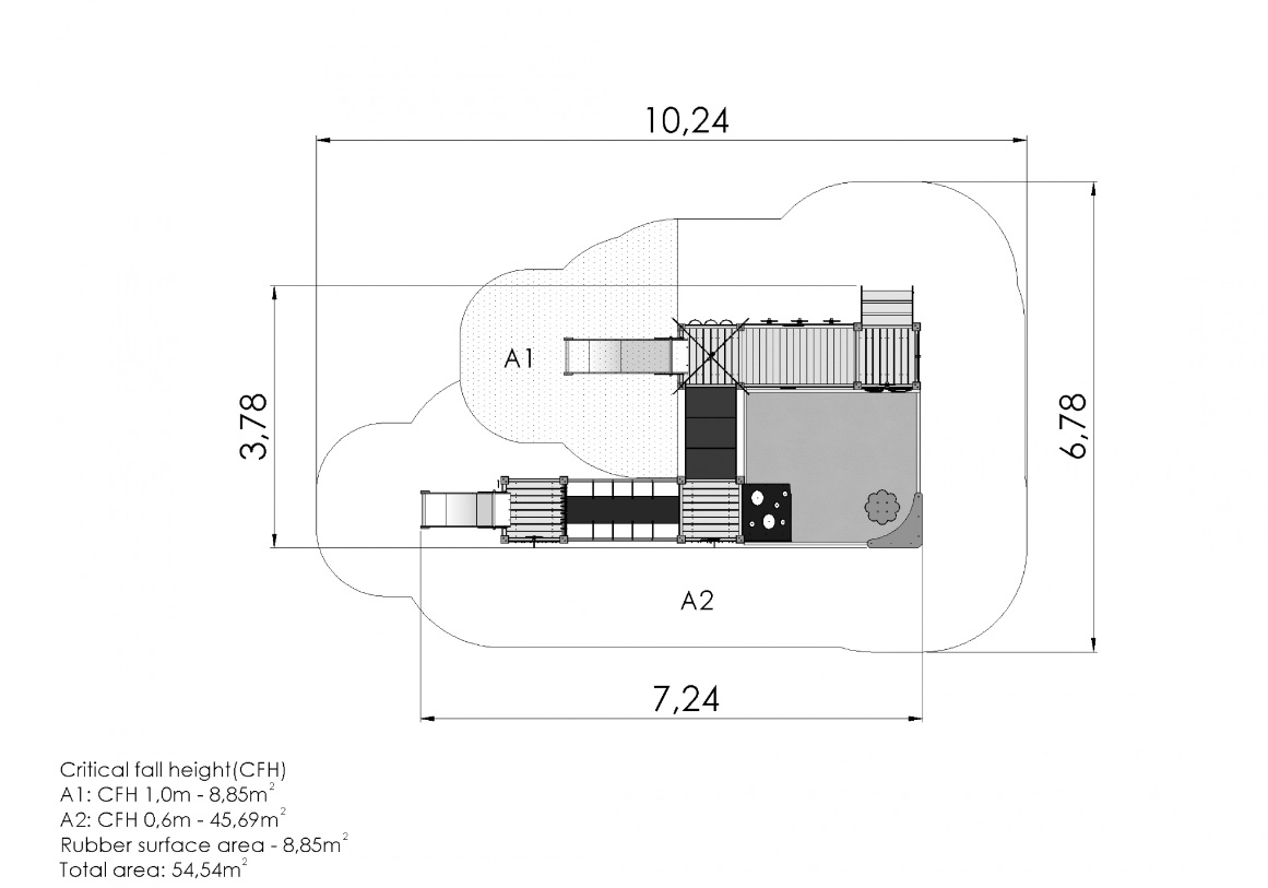
Saugos zonos plotis: 6,78 m
Saugos zonos ilgis: 10,24 m
Konstrukcijos plotis: 7,24 m
Konstrukcijos ilgis: 3,78 m
Konstrukcijos aukštis: 3,94 m
Didžiausias kritimo aukštis: 0,95 m
Skirta naudoti keliems vaikams vienu metu: 6-12 m.
Produktas susideda iš:
Platformos: 3 vnt. 0,55 m ir 1vnt 0,95 m aukščio. Plastiku dengta laminuota mediena
Stogai: 1vnt. HDPE plastikas
Tiltai: 3vnt.
Čiuožykla: 2 vnt. 0,95 m ir 0,55 m aukščio. Nerūdijančio plieno, HDPE plastiko šonai
Rampos: 1vnt. Fanera
Laiptai su turėklais: 1 vnt. Plastiku dengta laminuota mediena
Veiksmų plokštės: 10 vnt. HDPE plastikas
Atramos: 16vnt. Laminuota mediena
Plokštės: 8vnt. HDPE plastikas
Vamzdžiai: 7vnt. Cinkuotas ir milteliniu būdu dengtas plienas
Produkto aprašymas:
Šiame mažylių žaidimų centre su keturiomis platformomis yra įvairių elementų, padedančių lavinti bendrąją motoriką ir skatinančių aktyvius žaidimus. Į platformas veda laiptai su turėklais ir rampa su pakopomis. Saugus tinklo tiltas su turėklais, dvi rampos su laipteliais ir du šliaužimo skydai jungia platformas, o nusileidimo kalnelis vėl nuleidžia vaikus žemyn. Žaidimų centre yra integruota smėlio dėžė, kurioje įrengtas nedidelis žaidimų stalas ir kampinės platformos, kuriose galima kurti įvairiausius smėlio kūrinius. Smulkiąją motoriką lavinti padeda skaičiuotuvas, kelios besisukančios plokštės, žaidimas “Tic-Tac-Toe”, laikrodis su rodyklėmis, judantys burlaiviai ir penki kapitonų vairai.
Į kaina neįskaičiuotas prekių pristatymas bei montavimas. Galutinė kaina priklauso nuo pasirinktų spalvų ir atramų tipo ( medis arba metalas). Pateikta kaina yra su medinėmis atramomis.
Pristatymo terminas 4-6 savaitės.
Nuoroda: https://www.tiptiptap.ee/en/product/play-centre-amandus_LM017
