Techninė informacija:
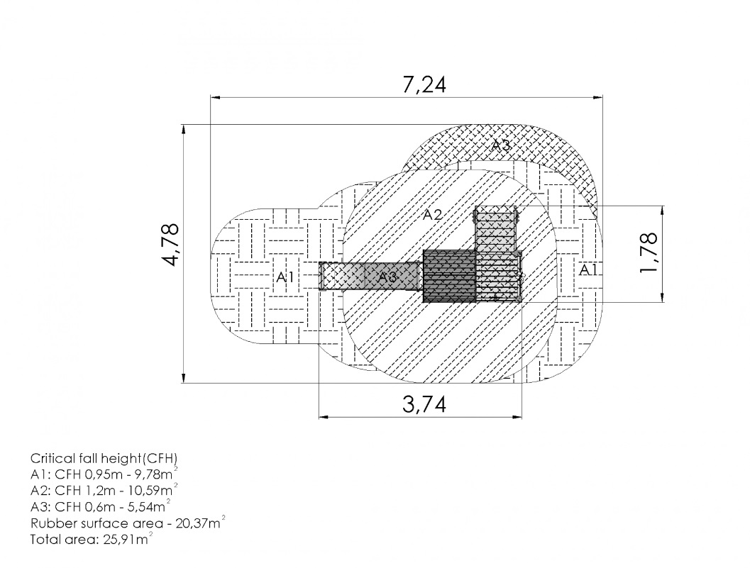
Saugos zonos plotis 4,78 m
Saugos zonos ilgis 7,24 m
Konstrukcijos plotis 3,74 m
Konstrukcijos ilgis 1,78 m
Konstrukcijos aukštis 2,9 m
Didžiausias kritimo aukštis 1,2 m
Gaminiui reikalingas saugos paviršius
Rekomenduojamas vaikų amžius 1+
Skirta naudoti keliems vaikams vienu metu 5-10
Produktas susideda iš:
Platformos: 2 vnt. 0,95 m ir 1,2 m aukščio. Plastiku dengta laminuota mediena
Stogai: 1vnt. HDPE plastikas
Čiuožykla: 1 vnt. 1,2 m aukščio. Nerūdijančio plieno, HDPE plastiko šonai
Rampos: 1vnt. Fanera
Žaidimų kampai: 1vnt. Plastikas ir mediena
Veiksmų plokštės: 2vnt. HDPE plastikas
Laiptai su turėklais: 1 vnt. Plastiku dengta laminuota mediena
Atramos: 6vnt. Laminuota mediena
Plokštės: 5vnt. HDPE plastikas
Vamzdžiai: 1vnt. Cinkuotas ir milteliniu būdu dengtas plienas
Produkto aprašymas:
Kalnelis su stogu ir dviem platformomis, žaidimų kampelis ir laiptai su turėklais. Apatinėje platformoje yra kapitono vairas ir žiūronai. Po aukštesne platforma esančiame žaidimų kampelyje yra suoliukas, jame galima įrengti virtuvės arba automobilio prietaisų skydelio elementus. Šoninius kalnelio skydelius galima keisti įvairiomis veiklos sienelėmis arba teminiais spausdintiniais skydeliais (gyvūnai, paukščiai, žuvys, medžiai, uogos ir t. t.). Skydų dizainas bus galutinai suderintas su klientu užsakymo metu.
Į kaina neįskaičiuotas prekių pristatymas bei montavimas. Galutinė kaina priklauso nuo pasirinktų spalvų ir atramų tipo ( medis arba metalas). Pateikta kaina yra su medinėmis atramomis.
Pristatymo terminas 4-6 savaitės.
Nuoroda: https://www.tiptiptap.ee/en/product/slide-emma_LM201
