Techninė informacija:
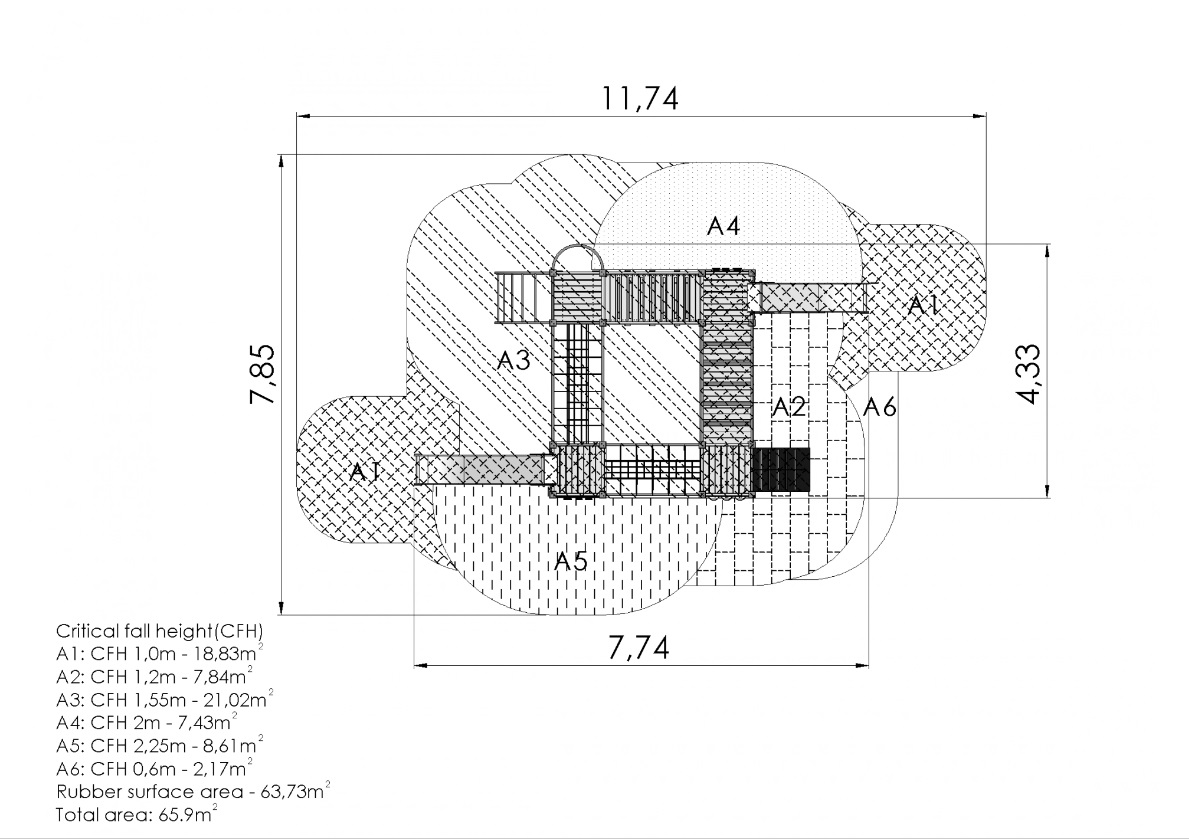
Saugos zonos plotis 7,85 m
Saugos zonos ilgis 11,74 m
Konstrukcijos plotis 7,74 m
Konstrukcijos ilgis 4,33 m
Konstrukcijos aukštis 2,85 m
Didžiausias kritimo aukštis 2,25 m
Gaminiui reikalingas saugos paviršius
Rekomenduojamas vaikų amžius 4+
Skirta naudoti keliems vaikams vienu metu 10-20
Produktas susideda iš:
Platformos: 2 vnt. 1,55 m aukščio ir 2vnt. 1,2 m aukščio. Plastiku dengta laminuota mediena
Čiuožykla: 2 vnt. 1,55 m ir 1,2 m aukščio. Nerūdijančio plieno, HDPE plastiko šonai
Laipiojimo sienos: 2vnt. HDPE plastikas
Veiksmų plokštės: 1vnt. HDPE plastikas
Kopėčios: 1vnt. Cinkuotas ir milteliniu būdu dengtas plienas
Tiltai: 3vnt.
Tuneliai: 1vnt. Plastikas
Rampos: 1vnt. Fanera
Ugniagesių stulpai: 1vnt. Cinkuotas ir milteliniu būdu dengtas plienas
Atramos: 16vnt. Laminuota mediena
Plokštės: 8vnt. HDPE plastikas
Vamzdžiai: 14vnt. Cinkuotas ir milteliniu būdu dengtas plienas
Produkto aprašymas:
Šis žaidimų centras su keturiomis platformomis tinka vystomiesiems žaidimams ir įvairiems užsiėmimams. Į centrą galima patekti per rampą su laipteliais arba arkinėmis kopėčiomis. Dvi laipiojimo sienelės, tinklinis tunelis, pusiausvyros tiltas su kabančiu takeliu, tinklinis kabantis tiltas, dvi čiuožyklos, ugniagesių stulpas ir aktyvumo sienelė siūlo gausybę veiklų ir gryną pramogą. Žaidimų centro šoninius skydelius galima keisti įvairiomis veiklos sienelėmis arba teminiais spausdintiniais skydeliais (gyvūnai, paukščiai, žuvys, medžiai, uogos ir t. t.). Skydų dizainas bus galutinai suderintas su klientu užsakymo metu.
Į kaina neįskaičiuotas prekių pristatymas bei montavimas. Galutinė kaina priklauso nuo pasirinktų spalvų ir atramų tipo ( medis arba metalas). Pateikta kaina yra su medinėmis atramomis.
Pristatymo terminas 4-6 savaitės.
Nuoroda: https://www.tiptiptap.ee/en/product/play-centre-alexander_LM208
